Projektentwicklung

Karlsruhe

Passgenaue Lückenbebauung für gehobenes Wohnen

Image

Geschäftsfeld

Wohnen

Leistungen

Projektentwicklung

Bauherr

GIG-Gartenstraße 77
Immobiliengesellschaft mbH & Co. KG

Architekt

MÖRK GmbH & Co. KG

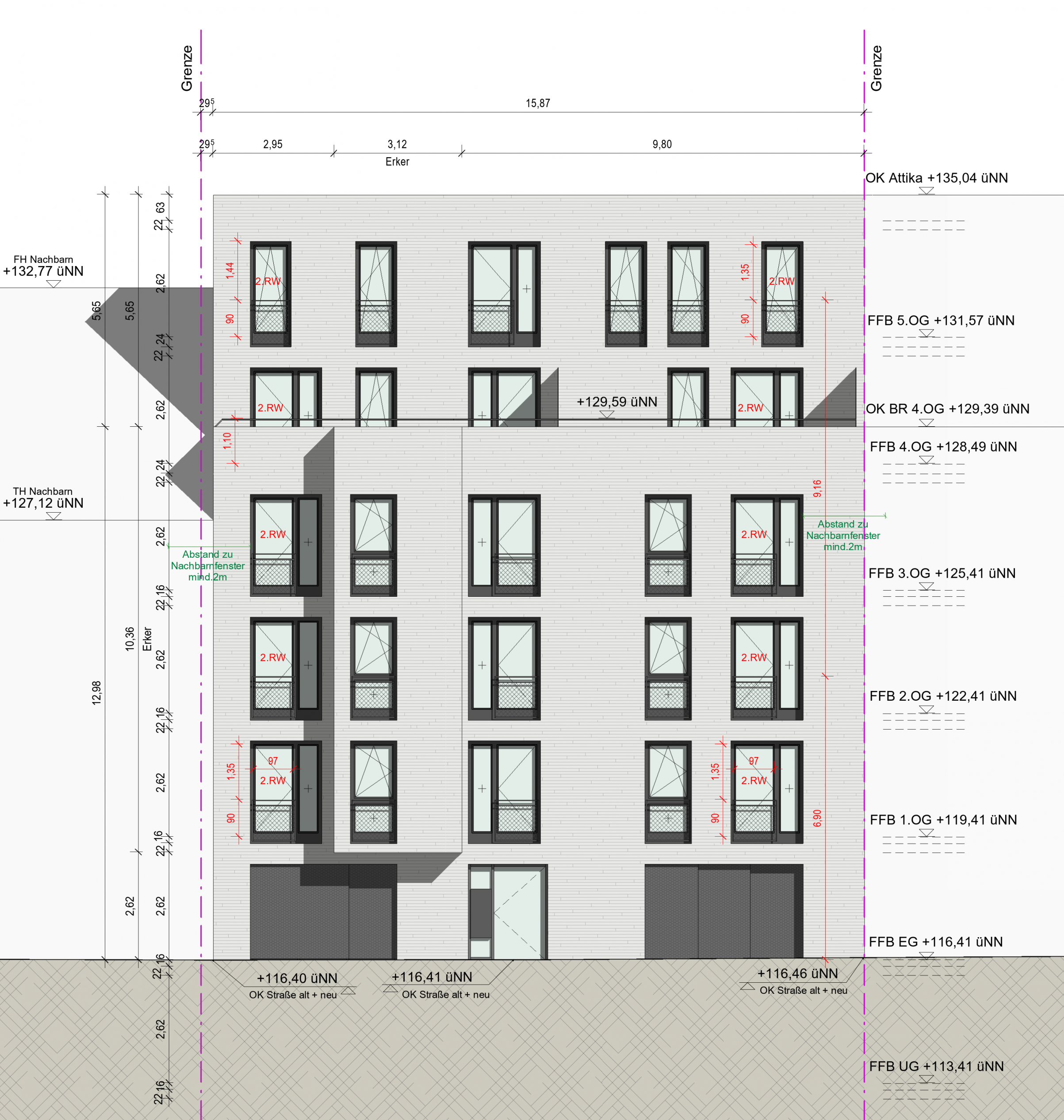
Die zentrale Aufgabe bestand darin, ein Wohngebäude präzise in eine bestehende Baulücke einzufügen. Die Kubatur war durch den Bebauungsplan klar definiert. Gleichzeitig stellte die schmale Straßenfassade eine besondere Anforderungen an die Architektur des Gebäudes. Ziel war es, die städtebauliche Lücke zu schließen und das Stadtbild sinnvoll zu vervollständigen, ohne die vorhandene Straßenflucht zu stören.

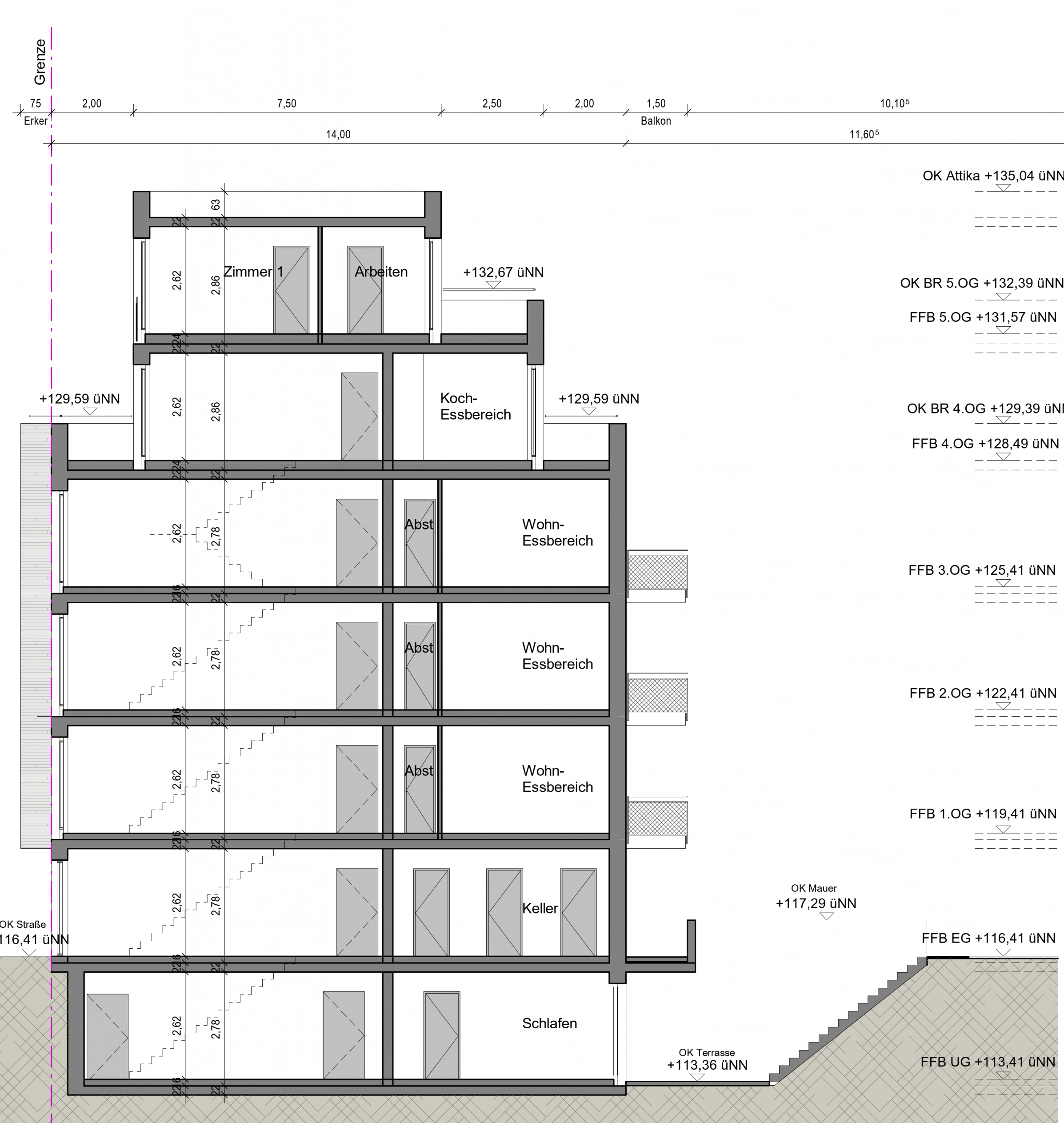
Der Entwurf reagiert sensibel auf den urbanen Kontext. Die dunkle Fassadengestaltung mit warmen Grau- und Brauntönen verleiht dem Baukörper Tiefe und Wertigkeit. Hochwertige Klinkerriemchen und abgestimmte Fensterprofile prägen das Erscheinungsbild. Bodentiefe Fenster sorgen für maximale Belichtung. Transparente Absturzsicherungen aus Streckmetall gewährleisten Sicherheit bei zurückhaltender Wirkung. Das Nutzungskonzept umfasst zehn Wohneinheiten mit 2- bis 5-Zimmern, teils als Maisonette. Die Wohnungen orientieren sich zur Straße und zum ruhigen Innenhof. Schlafräume liegen im Norden, Wohnbereiche im Süden.

Innerhalb der vorgegebenen Kubatur entstand ein klar strukturierter Baukörper, der die Lücke schließt und sich selbstverständlich einfügt. Die Grundrisse sind effizient, die Deckenhöhen großzügig. Bodentiefe Verglasungen und Dachterrassen erhöhen die Wohnqualität. Das Treppenhaus aus Sichtbeton unterstreicht den angestrebten Urban-Living-Charakter. So verbindet das Projekt städtebauliche Ordnung, hochwertige Materialität und zeitgemäßes Wohnen zu einer schlüssigen Gesamtlösung.

Image
Image
Image
Image

Ihr Ansprechpartner

Image

Daniel Kurzius

Vertrieb
:
Wohnen
,
Sozialimmobilien
,
Kirchen
,
Schulen
d.kurzius@moerk.de
+49 7152 6049-297