Calw
Haus der Gesundheit mit direkter Anbindung ans Krankenhaus

Geschäftsfeld
Leistungen
Bauherr
Architekt
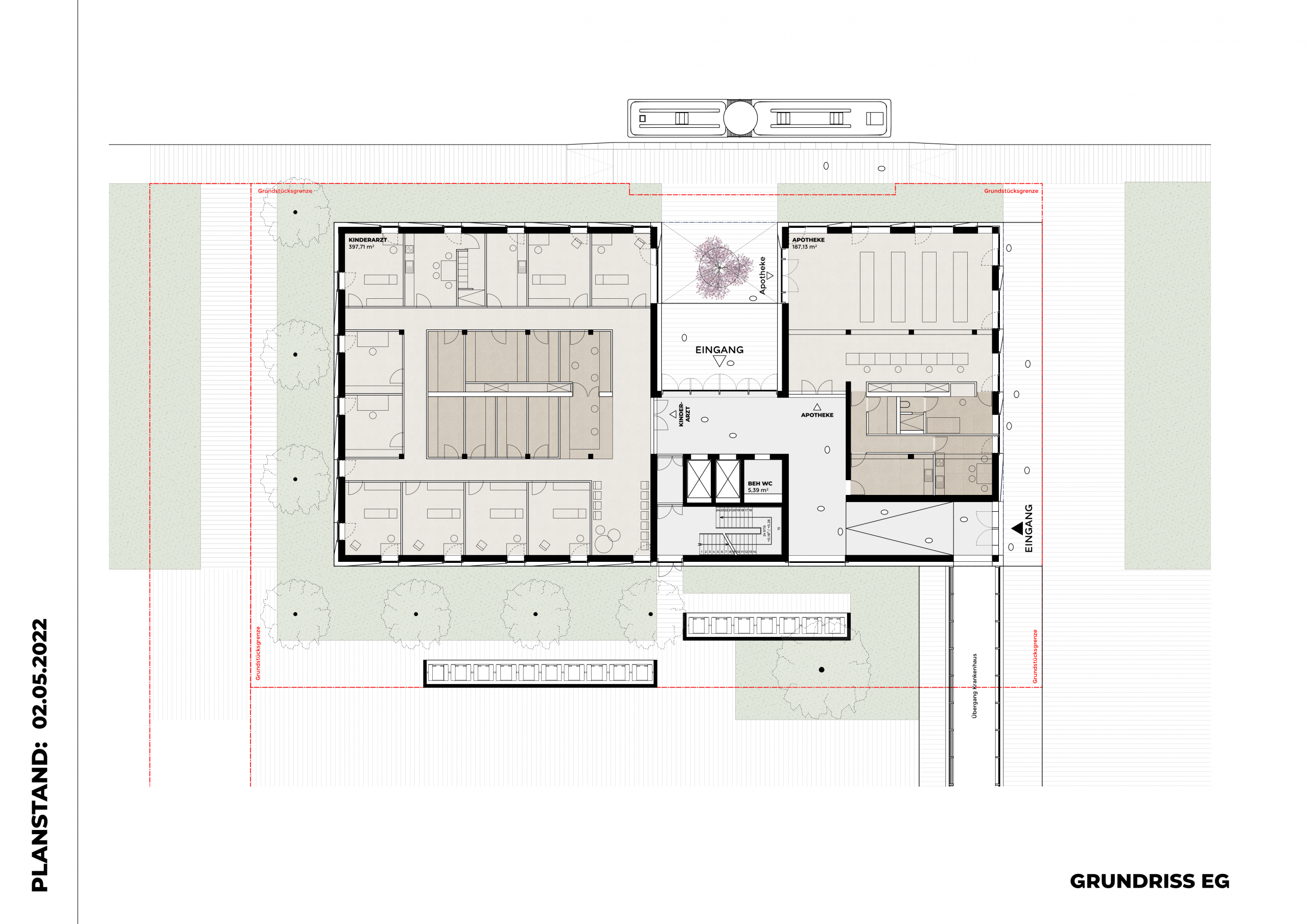
Das Projekt erforderte die Integration eines neuen Gesundheitsbausteins in einen bereits dicht belegten Campus. Gefordert waren übersichtlich organisierte Funktionsabläufe, kurze Wege und eine flexible Gebäudestruktur für unterschiedliche medizinische Nutzungen. Gleichzeitig musste das Gebäude städtebaulich den Bestand ergänzen und die Erschließung zum Krankenhaus sicherstellen.
Besonders war die Vielzahl an Nutzern mit unterschiedlichen raumfunktionalen Anforderungen – von Facharztpraxen über Therapieangebote bis hin zu Verwaltungseinheiten. Der direkte Verbindungsgang zum Krankenhaus stellte zusätzliche Anforderungen an Logistik, Brandschutz und technische Schnittstellen. Die Mieter benötigten individuelle Ausbauten, die präzise auf ihre Abläufe abgestimmt sind.
Wir entwickelten ein fünfgeschossiges Gebäude mit effizienter, wirtschaftlicher Struktur und 4.600 m² flexibel teilbarer Fläche. Heiz-Kühldecken, großzügige Verglasungen und ein abgestimmtes Mieterausbaukonzept sichern hohe Aufenthaltsqualität und funktionale Praxistauglichkeit. Die helle, zurückhaltende Fassade mit schrägen Laibungen fasst den Campus zusammen und schafft eine präzise architektonische Antwort. So entstand ein leistungsfähiger Gesundheitsstandort mit optimaler Anbindung an das Krankenhaus.






Ihr Ansprechpartner

