Pforzheim
Wettbewerb: Mitarbeiterwohnen im Park

Geschäftsfeld
Leistungen
Bauherr
Architekt
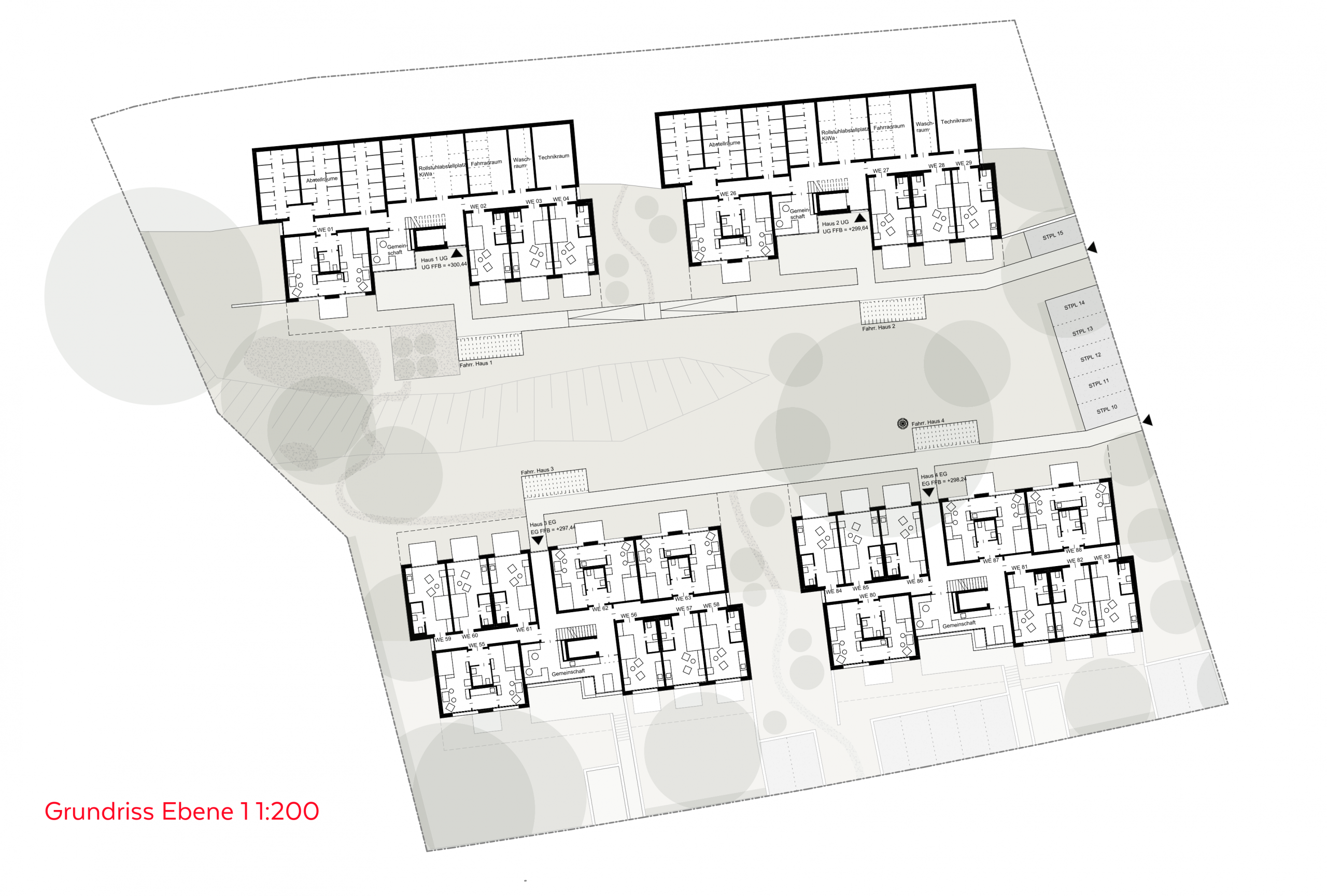
Der Entwurf für das Wohnheim für Pflegekräfte folgt dem Anspruch, ein parkartig geprägtes Hanggrundstück wirtschaftlich und zugleich qualitätsvoll zu bebauen. Ziel war es, Wohnraum mit hoher Aufenthaltsqualität zu schaffen, ohne den sensiblen Baumbestand und den landschaftlichen Charakter des Ortes zu beeinträchtigen.
Geprägt wird das Grundstück durch seine Topografie und den wertvollen Baumbestand. Vier Baukörper sind locker im Gelände positioniert und in der Höhe gestaffelt. Der bewusste Verzicht auf eine Tiefgarage reduziert Eingriffe in den Außenraum und senkt die Baukosten. Die Konstruktion mit tragenden Holzbautafeln und Betondecken ermöglicht flexible Grundrisse und eine spätere Umnutzung, etwa zu betreutem Wohnen.
Das Konzept ordnet 100 Wohneinheiten für 132 Bewohner in klar strukturierten 1- und 2-Zimmerwohnungen. Kompakte Grundrisse werden durch qualitätsvolle Gemeinschaftsbereiche ergänzt. Die Einstufung als Wohnheim erlaubt eine Reduzierung der Stellplätze und verbessert die Wirtschaftlichkeit. Ein nachhaltiges Energiekonzept mit Photovoltaik, Geothermie und Regenwassermanagement erfüllt den DGNB-Goldstandard und sichert eine ruhige, naturnahe Wohnanlage mit ausgewogener städtebaulicher Integration.





Ihr Ansprechpartner
